Tryouts on Living in the City: Balcony Home



Bezalel Academy of Art and Design


Instructors: Deborah Pinto Fdeda, Ifat Finkelman, Zvi Efrat


Together with Liran Messer



Awards:


2019   Archiprix International, Winner


2019   The Home Competition, Winner of Adaptability Award


2019   The Azrieli Foundation Prize, Finalist


2017   Honorary Thesis, Bezalel Academy of Art and Design

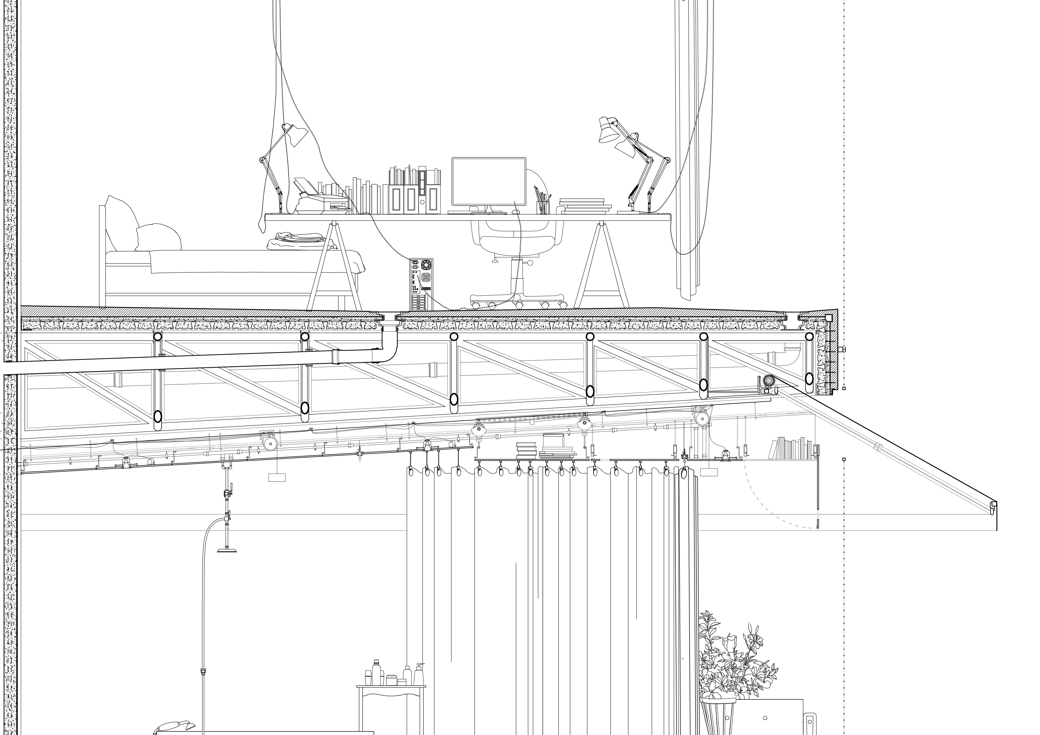
When a single square meter of floor in the city costs over 10,000$, it better be one incredible floor. If its section allow for a wide range of events and modes of living, perhaps the common yearning for the square meter could be replaced with the yearning for smarter infrastructure.


The balcony Home restructures the home as a platform, it is the common space for public and private actions – work, study, leisure, entertainment, and consumption. As water and electrical outlets are no longer program-dependent, the home is liberated from its basic spatial unit – the room, rendering the distinction between private and public, dirty and clean, hidden and visible, and wet and dry obsolete.


The structure transforms into a utilized extension of the city, as the floor becomes the most dominant element allowing for countless variations of a home.