Tryouts on Living in the City: Here We Live and Now



Bezalel Academy of Art and Design


Instructors: Deborah Pinto Fdeda, Ifat Finkelman, Zvi Efrat


Together with Liran Messer



Awards:


2019   Archiprix International, Winner


2019   The Home Competition, Winner of Adaptability Award


2019   The Azrieli Foundation Prize, Finalist


2017   Honorary Thesis, Bezalel Academy of Art and Design


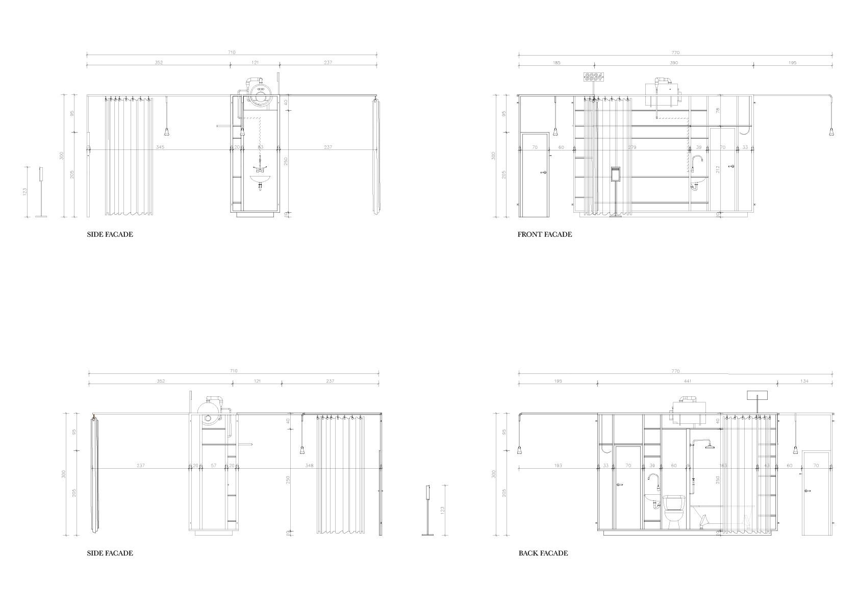
When the value of a city home is estimated at 200 salaries, it makes sense to think about home as a ‘thing’ that can be bought or obtained, home becomes a collectable and its parts – replaceable. In such a home, structural elements such as the window, door, stairs, wall or ceiling undergo a process of objectification, transforming into units arranged in space and home is articulated as a composition that differs from the traditional approach to figure ground. The act of moving units in time becomes the new household and the changing appearance of the home indicates on he who lives in it. One could have his own home collection which he can take with him whenever and wherever he goes. This is living as an ongoing project in which the home becomes an object of desire.