Row Living


Yale


Pier Vittorio Aureli

Emily Abruzzo


Together with Serge Saab

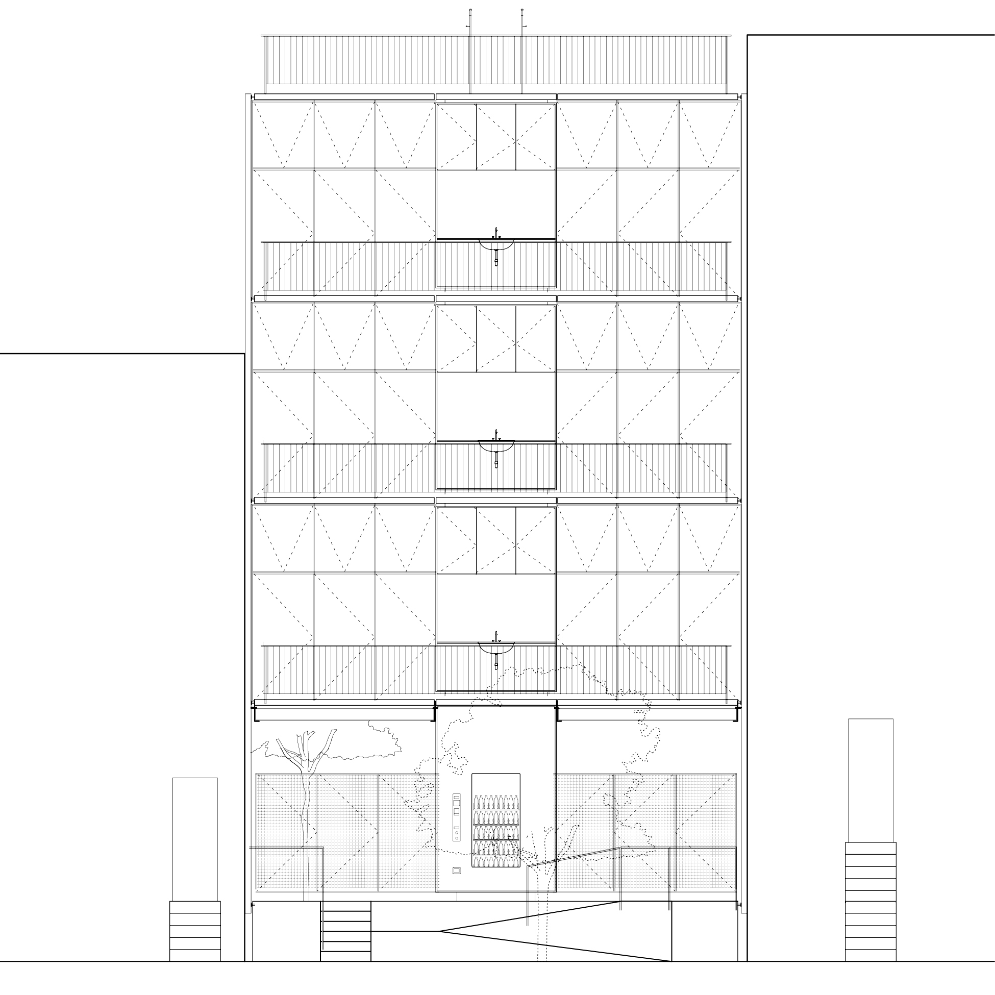
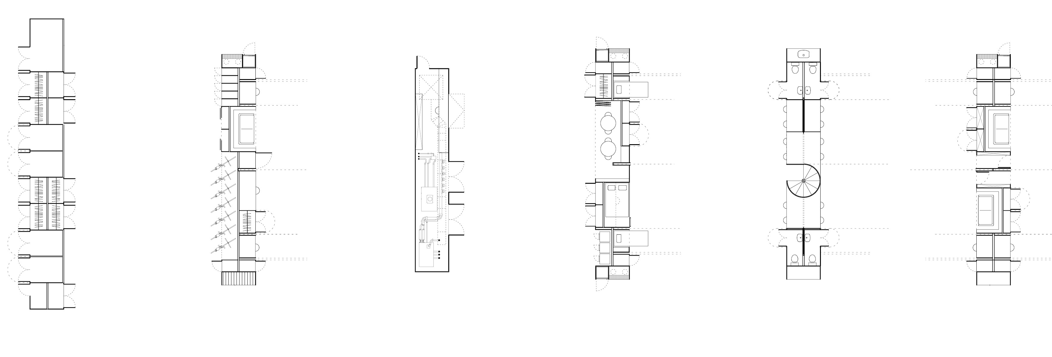
The rowhouse party wall is a distilled element shared to achieve privacy. The projects proposes widening the wall as a domestic device, allowing living to take place through and within. As an autonomous volume, it is re-conceptualized in a new scale between furniture and space, becoming a generator for a new replicable dwelling mode cast over the generic plot of the New York grid.

The new party wall reorganizes the building’s logic of structure, infrastructure, public, and private. By stacking programs, it promotes a new model of domestic use and temporary ownership, where dwellers can move along and through the wall, hacking the row.