Toy


Yale


Advisors: Luis Callejas, Dana Karwas, Liad Sandmann


Independent Thesis

“All the toys are essentially a microcosm of the adult world; they are all reduced copies of human objects, as if in the eyes of the public the child was nothing but a smaller man”

Roland Barthes, Mythologies (1957)


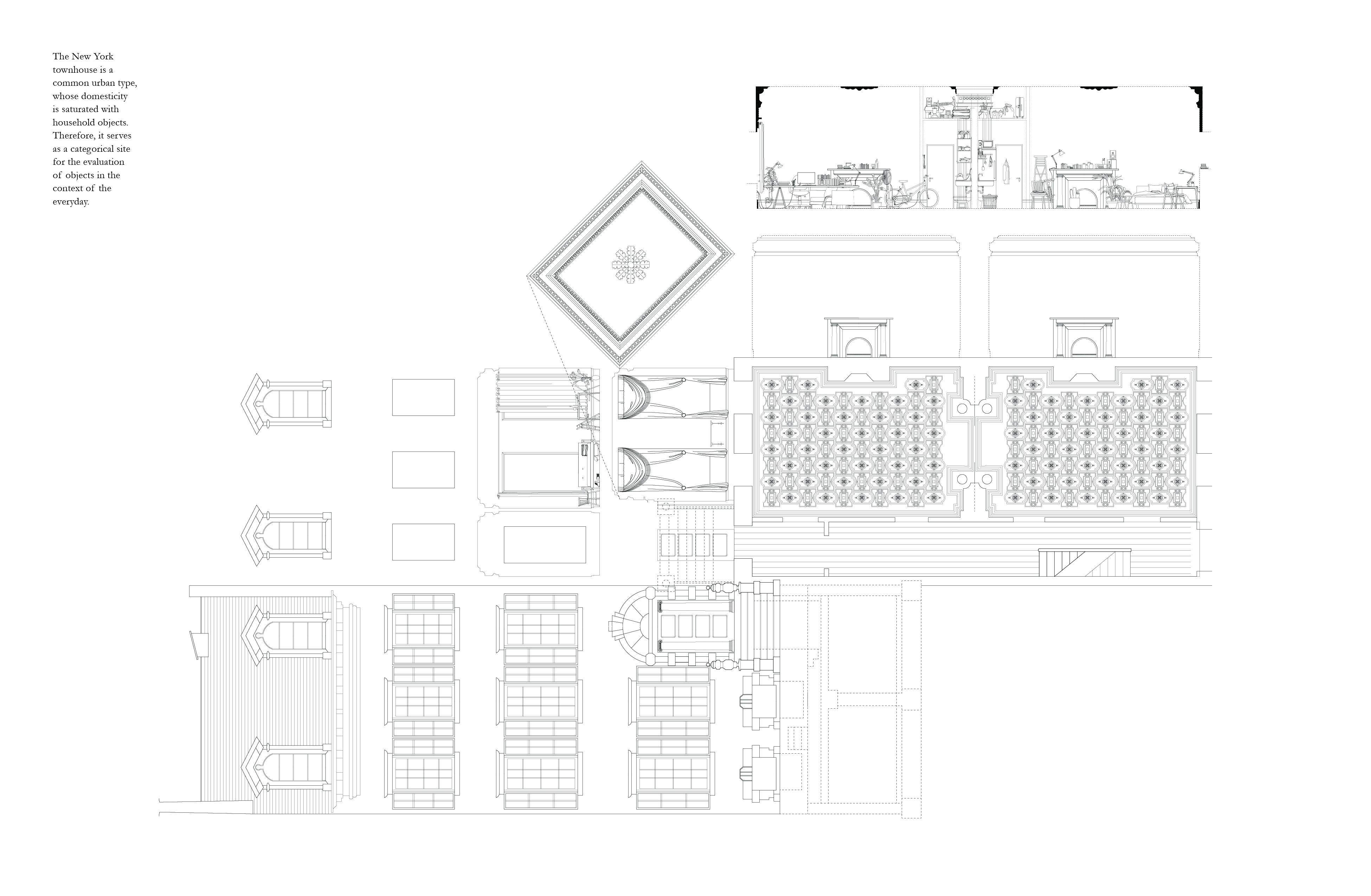
In the late nineteenth century, many new urbanites were eager to join the expanding middle-class of America. Families sought luxury through interiority, giving rise to a new domestic type – the townhouse – formed through mass-produced architectural commodities, from doors and windows to ornaments and furniture. As a product of catalogs and a serialized entity itself, both the architecture and interiority of the home became linked to the factory, constructed through standardized objects. With overlapping inhabitancy models, from nuclear families to roommates, to single residents, the townhouse is saturated with household objects, leaving slits of emptiness whose only possible occupant is a small subject.


The Toy project occupies the point of view of a small subject while hijacking the constant flow of objects into domestic space. It is a physical manifestation of a point of view, (ab)using the home’s empty spaces integral to its industrialized parts – the door’s opening radius, the window’s wing rotation, and the leftover corner. Unlike other objects, it does not take up space when used, only when removed from play. Once in place, Toy tests the standards of the home by manipulating its volumes and surfaces.


The kid does not use miniatures of the already existing world. Instead, Toy hacks into standardized objects of space, transforming the home itself into play. The door remains a door, the window remains a window, and the corner remains a corner. The small subject invites the possibility of changing the house from within through the act of play and object of Toy.